
Jerlínová 641 00 Brno-Žebětín
Prémiové 4+kk (138 m²) se dvěma balkony v Brně-Žebětíně
4+kk
Kuchyňský kout
Balkón
Klimatizace
Koupelna
Sprchový kout
Samostatné WC
Bytový dům
výtah
Sklep
Podlahové vytápění
Les
Příroda
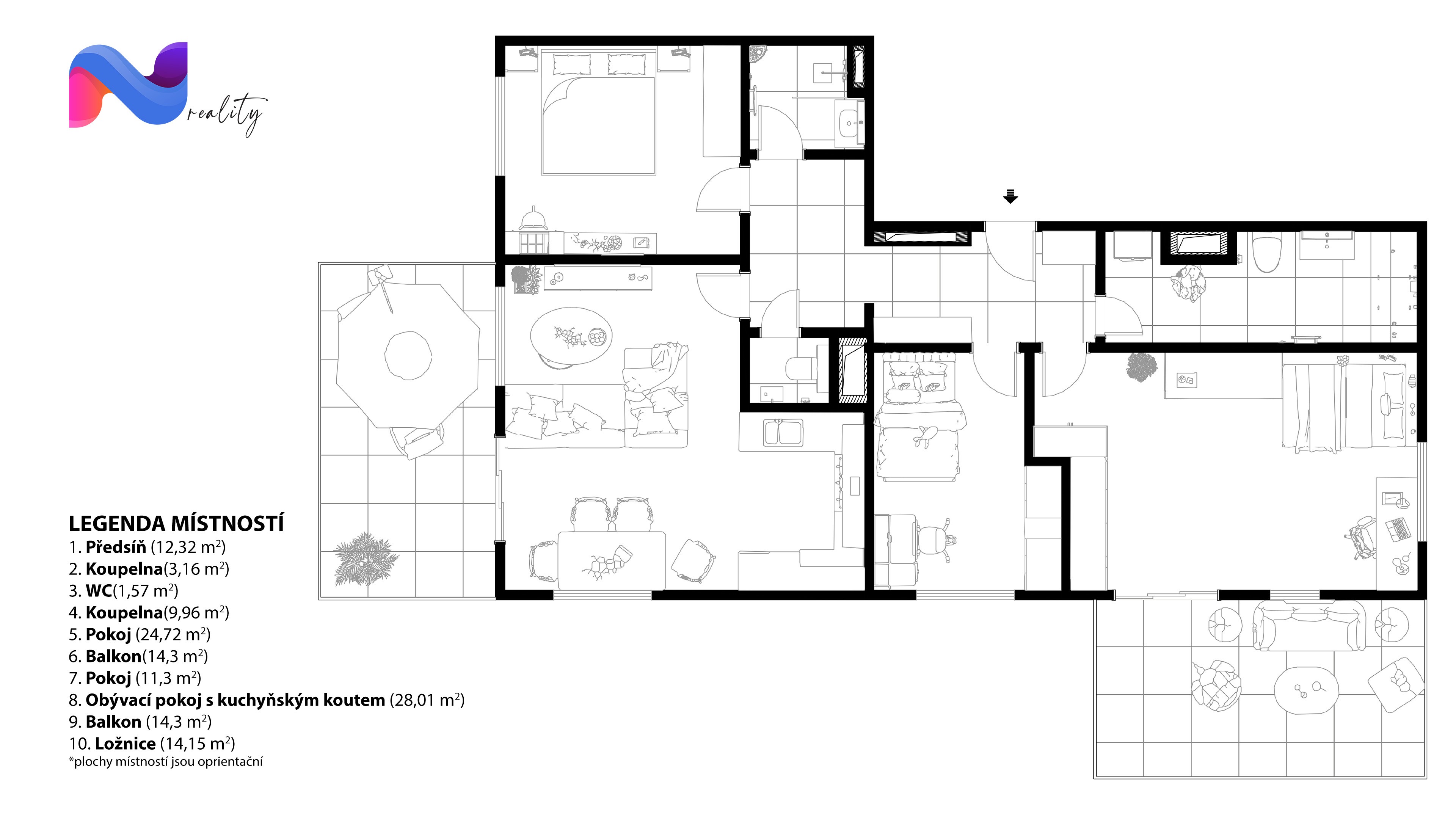
Projekt Rezidence Jerlínka představuje svou vlajkovou loď pro velké rodiny. Tento byt 4+kk ve 4. patře je unikátní nejen svou plochou, ale především chytrým rozložením. Nabízí dvě koupelny, dva velké balkony a jeden nadstandardně velký pokoj (25 m²), který se jen tak nevidí.
Klíčové benefity:
Dva balkony (2x 14 m²): Luxusní venkovní prostor o celkové ploše téměř 29 m². Jeden balkon je orientován na jih (přístupný z obýváku a ložnice), druhý na západ (přístupný ze dvou pokojů). Slunce si užijete po celý den.
Královský pokoj (24,7 m²): Tato místnost je větší než leckteré garsonky. Může sloužit jako luxusní ložnice s pracovnou, obří dětský pokoj pro sourozence, nebo "druhý obývák" pro teenagery.
Dvě koupelny: Ranní shon odpadá. Hlavní koupelna (téměř 10 m²) disponuje vanou, druhá menší koupelna má sprchový kout. Samozřejmostí je další samostatné WC.
Prémiové vybavení: V ceně je zahrnuta klimatizace, podlahové vytápění, venkovní žaluzie a trojskla.
Dostatek úložného prostoru: Velká vstupní hala a k tomu nadstandardní sklep (4 m²).
Dispozice (Užitná plocha cca 137,8 m²):
Obývací pokoj s KK (28,01 m²): Srdce bytu s přímým vstupem na jižní balkon.
Pokoj - Master (24,72 m²): Mimořádně velký pokoj se vstupem na západní balkon.
Ložnice (14,15 m²): Klidná místnost se vstupem na jižní balkon.
Pokoj (11,30 m²): Ideální pracovna nebo dětský pokoj se vstupem na západní balkon.
Zázemí: Velká koupelna (9,96 m²), druhá koupelna (3,16 m²), WC (1,57 m²) a prostorná předsíň (12,32 m²).
Příslušenství: Dva balkony (celkem 28,60 m²) a velká sklepní kóje (4,01 m²). Možnost dokoupení garážového stání.
Harmonogram:
Hrubá stavba: březen 2026
Kolaudace: březen 2027
Financování a podmínky:
Cena je konečná: Jedná se o přímý prodej od investora, neplatíte provizi RK.
Bezpečné splácení: Platební harmonogram je rozložen podle jednotlivých etap výstavby.
Hypotéka: Byt lze využít jako zástavu úvěru. S vyřízením financování vám rádi pomůžeme.
Cena nemovitosti
15 120 000 Kč
Máte zájem? Ozvěte se mi

Petr Nossek
+420 608 311 773
petr.nossek@properia.cz
Půdorys
Soubory ke stažení
Videoprohlídka
Lokalita
Jerlínová - Žebětín
Žebětín už dávno není jen okrajovou čtvrtí. Je to exkluzivní adresa pro ty, kteří odmítají dělat kompromisy mezi kariérou ve městě a životem v přírodě.
Rezidence Jerlínka vyrůstá v lokalitě, která nabízí vzácnou rovnováhu. Ráno vás probudí klid a čerstvý vzduch z okolních lesů, a přitom za pár minut sedíte v kavárně nebo nakupujete v supermarketu. Žebětín si zachoval svou původní, téměř venkovskou atmosféru a komunitního ducha, ale přirozeně srostl s moderním zázemím Brna.
Příroda jako váš soused
Zapomeňte na víkendové útěky z města. Tady začíná víkend, jakmile otevřete dveře na terasu.
Obora Holedná: Doslova za domem se rozprostírá unikátní lesní obora, kde můžete při ranním běhu potkat daňky či muflony. Ideální místo pro procházky s dětmi nebo pro vyčištění hlavy po náročném dni.
Žebětínský rybník: Přírodní památka, která v zimě láká bruslaře a po zbytek roku nabízí romantické scenerie.
Brněnská přehrada: K vodě to máte na kole jen kousek. Cesta vede přes Údolí oddechu, takže relax začíná už samotnou jízdou.
Bystrc a služby na dosah ruky
Bát se, že budete „odříznutí od civilizace“, je zbytečné. Žebětín disponuje vlastní základní vybaveností (školka, škola, restaurace, sportoviště), ale jeho obrovskou výhodou je přímé sousedství s městskou částí Bystrc. Bystrc funguje jako plnohodnotné město ve městě – najdete zde velké supermarkety, polikliniku, lékárny, poštu i širokou síť služeb. Vše máte v dosahu několika minut autem nebo MHD, aniž byste museli zajíždět do centra Brna.
Budoucnost patří kolejím: Tramvaj až pod okna
Jedním z nejsilnějších argumentů pro koupi bytu v Rezidenci Jerlínka je investiční potenciál spojený s dopravou. Brno intenzivně pracuje na prodloužení tramvajové trati ze smyčky Ečerova (Bystrc) až na Kamechy a do Žebětína. Co to pro vás znamená?
Maximální pohodlí: Rychlé, ekologické a přímé spojení do centra bez přestupů a kolon.
Růst hodnoty: Nemovitosti v docházkové vzdálenosti od tramvajových zastávek si historicky drží hodnotu nejlépe a nejrychleji se zhodnocují.
Příběh místa
Projekt nese jméno podle Jerlínu japonského, majestátního stromu, který je symbolem síly, vytrvalosti a klidu. Přesně takový domov pro vás v Žebětíně budujeme. Místo, kde načerpáte energii, ať už na své terase, nebo v zeleném okolí, které se nikdy neomrzí.










