
Jerlínová 641 00 Brno-Žebětín
Moderní 2+kk (69 m²) s klimatizací a velkým balkonem v Brně-Žebětíně
2+kk
Kuchyňský kout
Koupelna
Samostatné WC
Klimatizace
Podlahové vytápění
Balkón
Bytový dům
výtah
Sklep
Příroda
Les
Projekt Rezidence Jerlínka v Žebětíně přináší moderní bydlení bez kompromisů. Nabízený byt 2+kk zaujme především velkorysým obývacím prostorem o výměře přes 30 m², orientací na slunné strany a prostorným balkonem.
Klíčové benefity:
Prostorný obývák (31 m²): Hlavní místnost je nadstandardně velká, což u dispozic 2+kk nebývá zvykem.
Ideální orientace: Byt je zalitý sluncem – obývací pokoj s balkonem směřuje na jih, ložnice na západ.
Prémiové vybavení: V ceně je již zahrnuta klimatizace, podlahové vytápění, venkovní žaluzie a trojskla.
Úsporný provoz: Energetická třída A a vytápění tepelnými čerpadly zaručují minimální měsíční náklady.
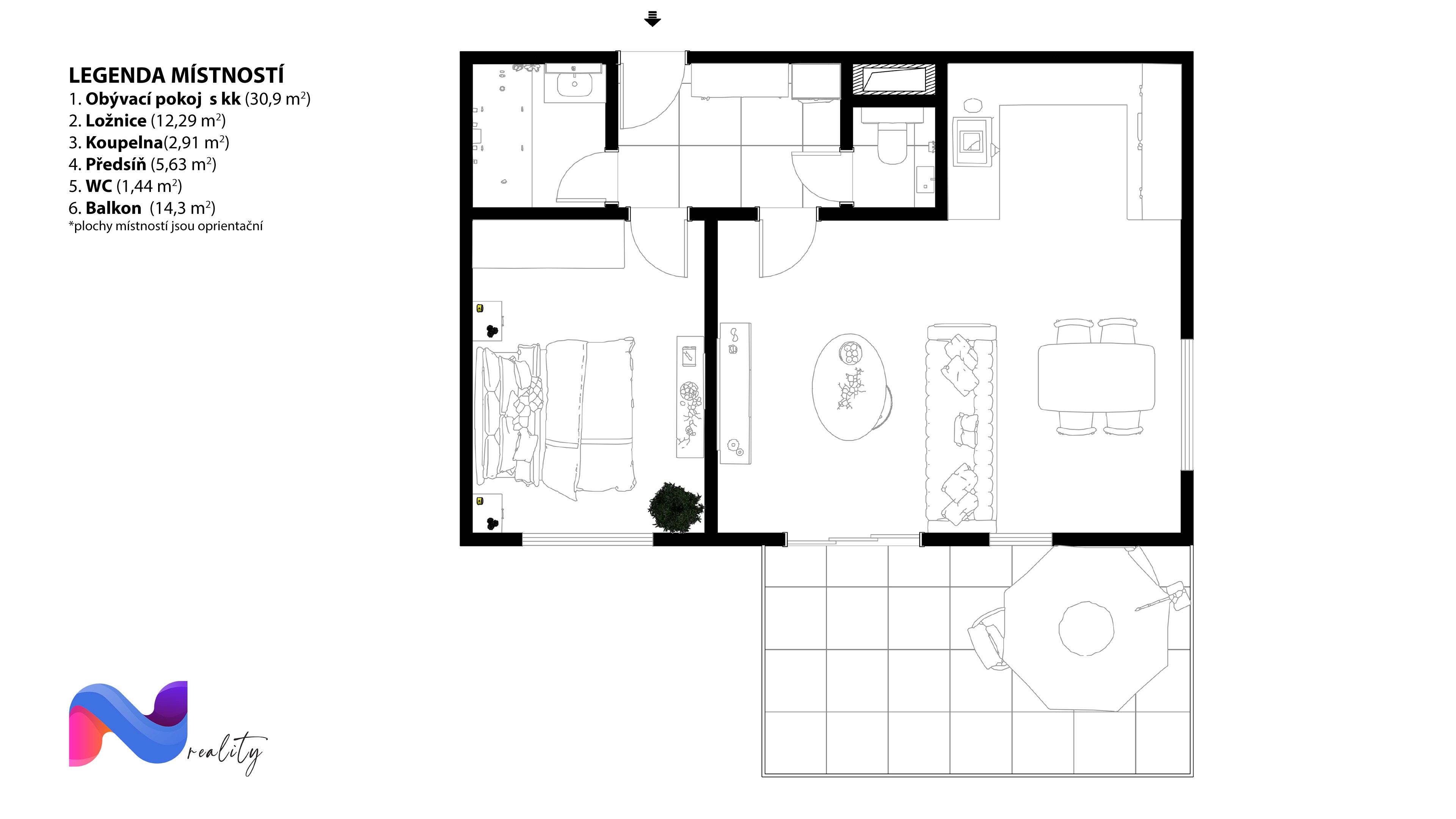
Dispozice (Užitná plocha cca 69,5 m²):
Obývací pokoj s KK (30,90 m²): Dominanta bytu orientovaná na jih, vstup na balkon.
Ložnice (12,29 m²): Útulný pokoj orientovaný na západ s vlastním vstupem na balkon.
Balkon (14,30 m²): Ideální pro relaxaci s výhledem do zeleně.
Zázemí: Koupelna s vanou (2,91 m²), samostatné WC (1,44 m²) a předsíň (5,63 m²).
Příslušenství: K bytu náleží sklepní kóje (2,0 m²). Možnost dokoupení garážového stání.
Harmonogram:
Hrubá stavba: březen 2026
Kolaudace: březen 2027
Financování a podmínky:
Cena je konečná: Jedná se o přímý prodej od investora, neplatíte provizi RK.
Bezpečné splácení: Platební harmonogram je rozložen podle jednotlivých etap výstavby.
Hypotéka: Byt lze využít jako zástavu úvěru. S vyřízením financování vám rádi pomůžeme.
Cena nemovitosti
7 310 000 Kč
Máte zájem? Ozvěte se mi

Petr Nossek
+420 608 311 773
petr.nossek@properia.cz
Půdorys
Soubory ke stažení
Videoprohlídka
Lokalita
Jerlínová - Žebětín
Žebětín už dávno není jen okrajovou čtvrtí. Je to exkluzivní adresa pro ty, kteří odmítají dělat kompromisy mezi kariérou ve městě a životem v přírodě.
Rezidence Jerlínka vyrůstá v lokalitě, která nabízí vzácnou rovnováhu. Ráno vás probudí klid a čerstvý vzduch z okolních lesů, a přitom za pár minut sedíte v kavárně nebo nakupujete v supermarketu. Žebětín si zachoval svou původní, téměř venkovskou atmosféru a komunitního ducha, ale přirozeně srostl s moderním zázemím Brna.
Příroda jako váš soused
Zapomeňte na víkendové útěky z města. Tady začíná víkend, jakmile otevřete dveře na terasu.
Obora Holedná: Doslova za domem se rozprostírá unikátní lesní obora, kde můžete při ranním běhu potkat daňky či muflony. Ideální místo pro procházky s dětmi nebo pro vyčištění hlavy po náročném dni.
Žebětínský rybník: Přírodní památka, která v zimě láká bruslaře a po zbytek roku nabízí romantické scenerie.
Brněnská přehrada: K vodě to máte na kole jen kousek. Cesta vede přes Údolí oddechu, takže relax začíná už samotnou jízdou.
Bystrc a služby na dosah ruky
Bát se, že budete „odříznutí od civilizace“, je zbytečné. Žebětín disponuje vlastní základní vybaveností (školka, škola, restaurace, sportoviště), ale jeho obrovskou výhodou je přímé sousedství s městskou částí Bystrc. Bystrc funguje jako plnohodnotné město ve městě – najdete zde velké supermarkety, polikliniku, lékárny, poštu i širokou síť služeb. Vše máte v dosahu několika minut autem nebo MHD, aniž byste museli zajíždět do centra Brna.
Budoucnost patří kolejím: Tramvaj až pod okna
Jedním z nejsilnějších argumentů pro koupi bytu v Rezidenci Jerlínka je investiční potenciál spojený s dopravou. Brno intenzivně pracuje na prodloužení tramvajové trati ze smyčky Ečerova (Bystrc) až na Kamechy a do Žebětína. Co to pro vás znamená?
Maximální pohodlí: Rychlé, ekologické a přímé spojení do centra bez přestupů a kolon.
Růst hodnoty: Nemovitosti v docházkové vzdálenosti od tramvajových zastávek si historicky drží hodnotu nejlépe a nejrychleji se zhodnocují.
Příběh místa
Projekt nese jméno podle Jerlínu japonského, majestátního stromu, který je symbolem síly, vytrvalosti a klidu. Přesně takový domov pro vás v Žebětíně budujeme. Místo, kde načerpáte energii, ať už na své terase, nebo v zeleném okolí, které se nikdy neomrzí.










