
Seifertova 585/4, 638 00 Brno-sever-Lesná
Pronájem bytu 3+1 po kompletní rekonstrukci, 74 m², Brno - Lesná (ul. Seifertova)
Bytový dům
Patro
Výhled
Sklep
Sprchový kout
Balkón
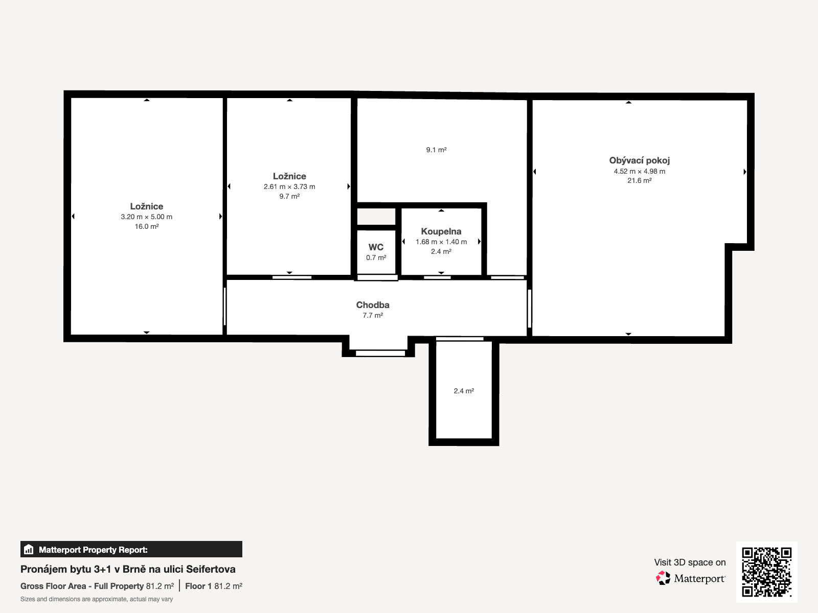
Nabízíme k pronájmu byt o dispozici 3+1 s celkovou užitnou plochou 74 m², situovaný v klidné a žádané lokalitě Brno - Lesná, na adrese Seifertova. Byt se nachází ve 4. nadzemním podlaží cihlového domu (bez výtahu).
Stav a vybavení bytu: Nemovitost prošla kompletní rekonstrukcí (koupelna, WC, kuchyňská linka, rozvody, omítky a podlahové krytiny), což zajišťuje moderní a pohodlné bydlení.
Poznámka: Kuchyňská linka a osvětlení budou dokončeny tak, aby byl byt při předání plně funkční.
Dispozice:
Prostorný obývací pokoj se vstupem na balkon (5 m²).
Dvě ložnice.
Kuchyně s novou linkou.
Koupelna a samostatné WC.
Chodba s úložnými možnostmi a komora.
K bytu náleží také sklep (2 m²).
Lokalita: Lesná patří mezi vyhledávané rezidenční čtvrti Brna. Nabízí klidné prostředí plné zeleně (lesopark Čertova rokle).
Vybavenost: V blízkosti jsou obchody, školy, školky, zdravotní středisko a sportoviště.
Dostupnost: Výborná dostupnost do centra města (MHD cca 10 minut i autem).
Parkování: Možné před domem v rámci rezidenčních zón.
Finanční podmínky:
Nájemné: 23 000 Kč/měsíc
Zálohy na služby (teplo, voda): 3 800 Kč/měsíc
Elektřina a plyn: Přepis na nájemníka
Vratná kauce: 40 000 Kč
Rezervační poplatek RK: 30 000 Kč vč. DPH
Byt je připraven k nastěhování ihned.
Cena nemovitosti
23 000 Kč
Máte zájem? Ozvěte se mi

Petr Nossek
+420 608 311 773
petr.nossek@properia.cz
Půdorys
Soubory ke stažení
Videoprohlídka
Lokalita
Brno Lesná
Přestože většinu čtvrti Lesná tvoří panelové sídliště, nacházejí se zde také rodinné domy. Zdejší sídliště, které bylo vybudováno v průběhu 60. a 70. let 20. století, je označováno za urbanisticky nejzdařilejší brněnské sídliště. Díky zdejší zeleni, blízkosti lesa a poměrně dobré dostupnosti se tato čtvrť řadí mezi nejatraktivnější části Brna a je přirovnávána k finské Tapiole u Helsinek.
Sídliště je postavené na mírném svahu nad silnicí spojující Královo Pole a Husovice. Mezi jednotlivými domy se nachází množství zelených ploch a hájků.Sídlištěm vede okružní komunikace, středem sídliště prochází hluboká zalesněná Čertova rokle, v níž se nachází amfiteátr. Na západě na hranici se sousedním katastrálním území Sadová se nachází hluboké zalesněné údolí „U Antoníčka“, v němž se nacházejí kaplička sv. Antoníčka se studánkou „U Antoníčka“, níže pak Zaječí potok.











