
Pitín 250, 687 71 Pitín
Prodej rodinného domu 4+1 s nádhernou zahradou v Pitíně
Velikost
Parkovací místo
Dům
Venkovní posezení
Koupelna
Sklep
Orientace
Ohniště
Zahrada
Ve výhradním zastoupení majitele nemovitosti Vám nabízíme příležitost ke koupi prostorného rodinného domu 4+1 v malebné a klidné obci Pitín. Dům se pyšní svou polohou na okraji obce, což zajišťuje naprosté soukromí a bezprostřední blízkost k přírodě Bílých Karpat. Tato exkluzivní nemovitost nabízí ideální kombinaci trvalého bydlení a rekreačního útočiště.
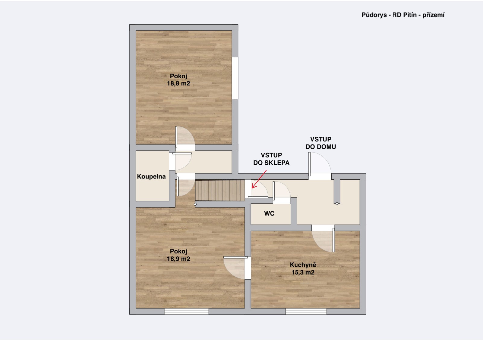
Dispozice a vybavení domu: Jedná se o dvoupodlažní dům o podlahové ploše 137 m².
Přízemí a patro: Každé patro disponuje vlastní koupelnou. V koupelně v patře je k dispozici sauna.
Sklep: Dům je částečně podsklepen.
Interiér: V podkroví vznikly nové útulné obytné prostory s plovoucí podlahou a izolací.
Zahrada a zázemí: Na zastavěné ploše 237 m² se kromě domu nachází také dílna, prostorná terasa pro relaxaci a pergola s posezením a krbem, která je ideální pro rodinné večeře.
Zahrada: Nádherná zahrada o rozloze 757 m² je vybudovaná s citem (denivky, keřové růže, japonský javor).
Potenciál: Zahradu je možné využít i jako další stavební pozemek.
Bonus: Nabízíme možnost koupě dalšího pozemku pro rozšíření panství.
Stav a rekonstrukce: Dům má bohatou historii (původní stavba 1936–1940), ale prošel zásadními úpravami. Současní majitelé od roku 2006 dům vylepšili:
Nová střešní krytina (Bramac).
Sjednocené potrubí, nová elektřina, dořešená kanalizace.
Nová koupelna se saunou v podkroví.
Inženýrské sítě:
Voda: Dálkový vodovod.
Elektřina: 230 V.
Plyn: Plynovod.
Odpad: Kanalizace.
Vytápění: Lokální plynové.
Lokalita: Pitín leží v klidné náručí Bílých Karpat (UNESCO). Obec nabízí veškeré základní služby: školu, mateřskou školu, obchod, sportovní klub a kulturní dům. Pro větší nákupy je k dispozici město Uherské Hradiště v dojezdové vzdálenosti.
Energetická náročnost budovy: G (Mimořádně nehospodárná)
Cena nemovitosti
4 300 000 Kč
Máte zájem? Ozvěte se mi

Petr Nossek
+420 608 311 773
petr.nossek@properia.cz
Půdorys
Soubory ke stažení
Videoprohlídka
Lokalita
Pitín
je obec v České republice, která se nachází v okrese Uherské Hradiště ve Zlínském kraji. Má bohatou historii a nabízí příjemné životní prostředí s výhledem na malebné okolí. V obci je základní škola, mateřská škola, kulturní dům, knihovna, muzeum a římskokatolická farnost. Pitín je známý pro své komunitní akce a tradice, které odrážejí místní kulturu a dědictví. Bílé Karpaty, biosférická rezervace UNESCO, jsou považovány za jedno z nejcennějších přírodních území v České republice. Tento horský hřeben je domovem bohaté biodiverzity, vzácných druhů flóry a fauny, a malebných lesních masivů. Oblast láká turisty na pěší a cyklistické trasy, které vedou krásnou, často nedotčenou přírodou. Bílé Karpaty jsou také známé svými lidovými tradicemi a festivali, které podtrhují kulturní bohatství regionu.


















































