
Rajhradická 275, 664 61 Opatovice-Rajhrad
Prodej rodinného domu 5+1, 132 m², s velkým pozemkem v Opatovicích u Rajhradu
Velikost
Parkovací místo
Dům
Balkón
Venkovní posezení
Koupelna
Garáž
Sklep
Zahrada
Ve výhradním zastoupení majitele nabízíme k prodeji prostorný rodinný dům o dispozici 5+1 na adrese Rajhradická 275, Opatovice. Dům byl kolaudován v roce 1960 a je vhodný k rekonstrukci, což novému majiteli umožňuje úpravy přesně dle vlastních představ. Tato nemovitost je ideální pro rodinné bydlení díky klidné lokalitě, blízkosti přírody a výborné dostupnosti do Brna.
Popis domu a dispozice:
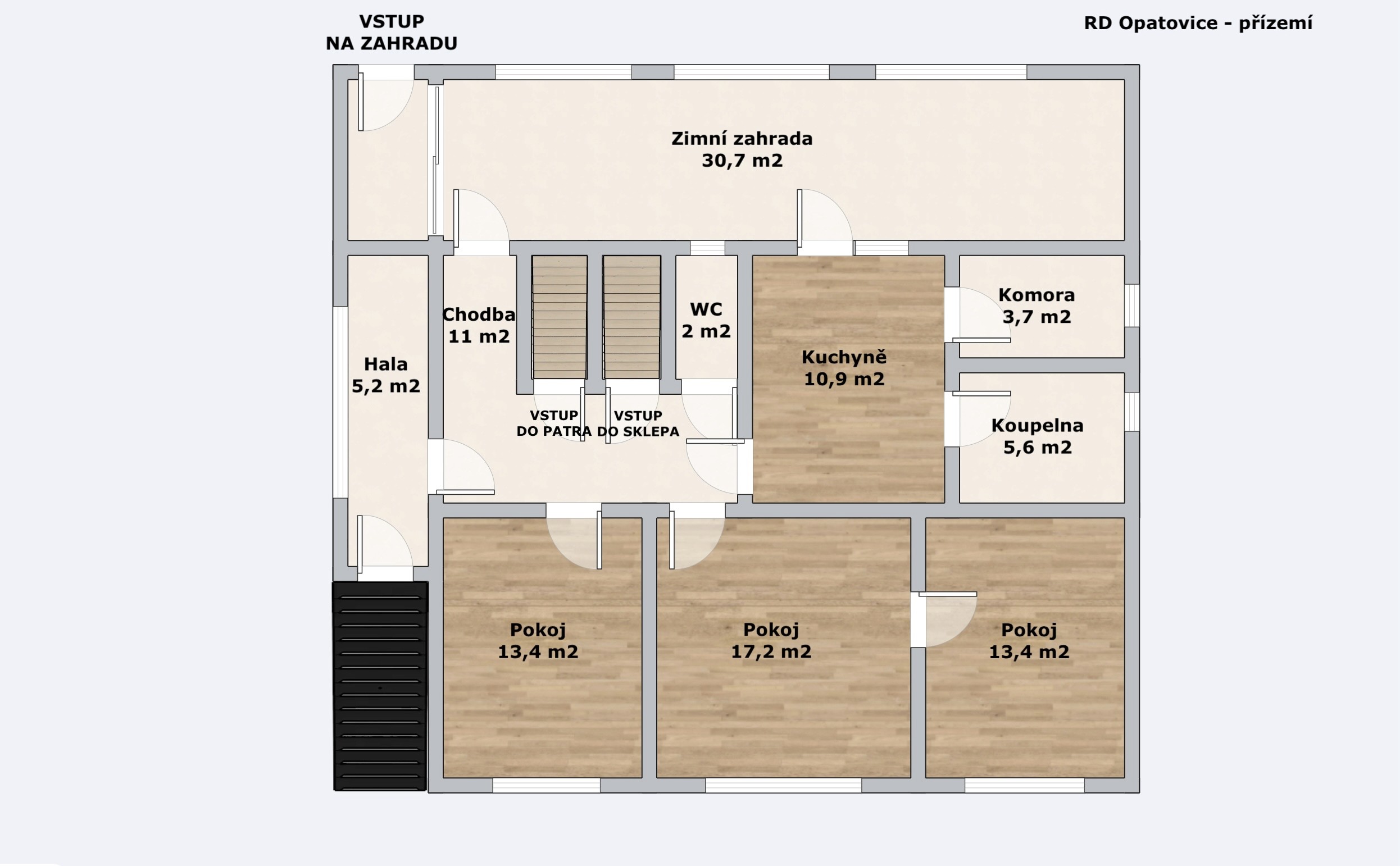
Užitná plocha: 132 m²
Dispozice: 5+1 (k dispozici jedna koupelna a jedno samostatné WC).
Další prostory: Dům je celý podsklepený, náleží k němu garáž, venkovní stání a prostorná zimní zahrada (30,7 m²).
Stav: Dům je určen k rekonstrukci, avšak v roce 2009 proběhla částečná modernizace – byla instalována nová plastová okna i dveře, upravena fasáda a vyměněn plynový kotel.
Pozemek a zahrada: Jednou z hlavních předností nemovitosti je nádherný rovinatý pozemek o celkové výměře 1 672 m².
Zahrada nabízí dostatek soukromí pro relaxaci či zahradničení.
Velikost pozemku představuje výbornou investici do budoucna – nabízí možnost rozšíření stávajícího domu nebo případné výstavby dalšího objektu.
Inženýrské sítě a technické vybavení:
Elektřina: 230 V a 400 V.
Voda: Obecní vodovod.
Odpad: Kanalizace.
Plyn: Plynová přípojka (vytápění lokální plynové).
Konstrukce: Cihlová.
Lokalita a občanská vybavenost: Opatovice u Rajhradu jsou klidnou obcí s výbornou strategickou polohou.
Dostupnost: Pouze 20 minut autem do Brna (rychlý nájezd na D1). V sousedním Rajhradě je k dispozici vlakové spojení.
Vybavenost: V obci je mateřská a základní škola, obchod, restaurace a sportovní zařízení. Rozšířené služby (lékárny, další obchody) jsou v nedalekém Rajhradě.
Příroda: Okolí je protkáno cyklostezkami (směr Pálava) a turistickými trasami.
Cena nemovitosti
6 850 000,00 Kč
Máte zájem? Ozvěte se mi

Petr Nossek
+420 608 311 773
petr.nossek@properia.cz
Půdorys
Soubory ke stažení
Videoprohlídka
Lokalita
Opatovice u Rajhradu
jsou menší obec v Jihomoravském kraji, ležící přibližně 20 kilometrů jižně od Brna. Tato lokalita je velmi atraktivní pro lidi, kteří hledají klidné bydlení s dobrým spojením do města.
Doprava a dostupnost:Opatovice mají výhodnou polohu díky blízkosti dálnice D1, což umožňuje rychlý dojezd do Brna, ať už autem, nebo veřejnou dopravou. Brno je vzdáleno zhruba 20 minut jízdy autem. V blízkém Rajhradě najdete také vlakové spojení, které zajišťuje přímou linku do Brna.
Občanská vybavenost:Obec nabízí základní občanskou vybavenost v podobě mateřské a základní školy, pošty, obchodu s potravinami a několika restaurací. Další služby, jako jsou lékařská péče, sportovní zařízení nebo větší nákupní možnosti, jsou k dispozici v nedalekém Rajhradě. V Rajhradě najdete také lékárny, obchody a řadu volno časových aktivit.
Volnočasové aktivity a příroda:Opatovice jsou obklopeny krásnou přírodou, což z nich činí ideální místo pro milovníky turistiky, cykloturistiky nebo rodinných procházek. V okolí najdete mnoho cyklostezek vedoucích až do chráněné krajinné oblasti Pálava.Významným přírodním lákadlem jsou také nedaleké Židlochovice a přírodní park Výhon, který nabízí možnosti pro výlety a rekreaci v přírodě.
Historie a kultura:Rajhrad, který je od Opatovic vzdálen jen několik kilometrů, se pyšní bohatou historií, zejména díky Benediktinskému klášteru, který je jedním z nejstarších klášterů v České republice. Tento klášter je kulturní památkou a vyhledávaným turistickým cílem.
Celkově jsou Opatovice u Rajhradu klidnou a příjemnou obcí pro rodinné bydlení, nabízející blízkost města a přírody zároveň.





























